Ficha
Piso en venta en Madrid ( BARRIO SALAMANCA)
REF. 1166

4

4

3
venta: 3.150.000 €
Descripción

Vendre&Archeter Inmobiliaria te presenta esta exclusiva oportunidad de vivir a escasos metros del Retiro.En finca clasica con salon comedor conunas agradables vistas .Hall de entrada .Dispone de cuatro dormitorios y cuatro baños.Gran salon comedor co grandes ventanenales .Orientado al este.
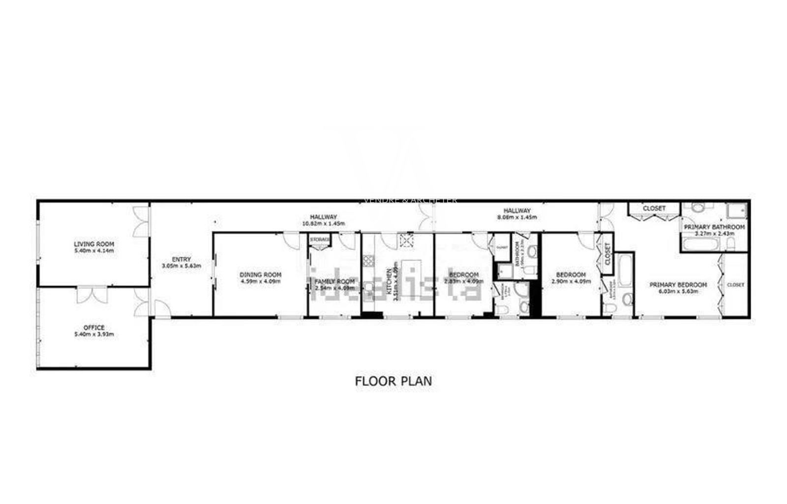
El piso consta de un gran recibidor que nos lleva a la izquierda a un amplio salón comedor con dos ventanales dobles a la calle y con vistas despejadas a preciosos edificios.
El piso consta de cuatro domitorios y cuatro cuartos de baño, tres de ellos en suite. Uno de los dormitorios en estos momentos hace vez de comedor y zona de televisión; la cocina se encuentra al lado lo que es muy práctico. Los tres dormitorios restantes son en suite siendo el principal muy amplio y cuenta con un vestidor. El aseo de cortesía es un cuarto de baño completo que da servicio al cuarto dormitorio. Techos muy elevados de 3.30 metros.
Tanto el distribuidor como los dormitorios tienen grandes ventanas a patios muy bien mantenidos y con muchísima luz.
El edificio es clásico de los años treinta del siglo pasado y dispone de portero en finca que habita en el edificio.
El piso se encuentra en una de las calles más icónicas de Madrid y a dos pasos de El Retiro, en pleno Recoletos.
El barrio de Salamanca es una de las zonas más relevantes de Madrid tanto por su peculiar distribución como por los vecinos que tradicionalmente han habitado sus emblemáticas calles. Su construcción data de la segunda mitad del siglo XIX y corresponde a la ampliación urbanística llevada a cabo durante el reinado de Isabel II. El precursor al que debe su nombre fue el malagueño José de Salamanca y Mayol, Marqués de Salamanca, quien concibió un nuevo emplazamiento con una cuidada edificación que albergara a las clases aristocráticas y burguesas de Madrid. De estilo decimonónico, se caracteriza por su especial distribución regular en forma de damero con calles perpendiculares. Sus edificios gozan de especial interés gracias a su calidad arquitectónica y la belleza de sus fachadas. Tradicionalmente, Salamanca fue una zona de uso residencial, especialmente habitada por las élites políticas y económicas del país. En los últimos cincuenta años este carácter residencial convive con otras actividades como la empresarial, la diplomática y especialmente la comercial ya que es una de las áreas de moda de lujo más importantes de la capital. El Parque del Buen Retiro es el auténtico protagonista de este barrio de Madrid que tiene sus flancos en las Calles de Alcalá y O'Donnell en el extremo norte, la Calle Doctor Esquerdo en el este, la Avenida del Mediterráneo y el Paseo de Reina Cristina en el Sur y la Calle Alfonso XII en el extremo occidental.
Características
Precio Venta 3.150.000 €
Dormitorios 4
Baños 4
Cocina Amueblada
Calefacción Central
Trastero
Altura/Planta 3
Estado Actualizar
Tipo de suelo Tarima
Ascensor
Aire acondicionado
Calificación Energética En trámite
Luz
Gas
Agua
Conserje
Escalas de eficiencia



Tu agente
Charo Carballo (Venta)
Contáctanos

Si deseas más información sobre esta propiedad, por favor, rellena el formulario.

 Sí, he leído y/o acepto las Condiciones de uso y la Política de privacidad
Inmuebles similares:
 
3.000.000 €
Ref. 1280  320 m2
Piso en venta en Madrid y con 320 m2.
 
2.700.000 €
Ref. 1279  208 m2  3  4
Piso en venta en Madrid, con 208 m2, 3 habitaciones y 4 baños, Garaje, Trastero, Ascensor, Amueblado, Aire acondicionado y Calefacción Central.